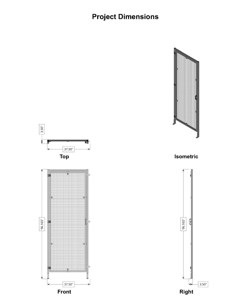
Door Panel 3' x 8' Black Mesh
Door Panel 3' x 8' Black Mesh
*Download the CAD file to various formats to integrate into other design software's
* Open the TBUILD file to modify the dimensions and/or add additional components
Door Panel 3' x 8' Black Mesh
*Download the CAD file to various formats to integrate into other design software's
* Open the TBUILD file to modify the dimensions and/or add additional components