Skip to main content Skip to footer

PLASTIC ADJUSTABLE HINGES

Image of Plastic Adjustable Hinge Image of Draw-Plastic Adjustable Hinge

Allows you to mount plastic panels and doors directly to TSLOTS, Adjustable hinge allows you to increase or decrease pivot tension, Adjustable Hinges are not suitable for hinging two TSLOTS extrusions together

SELECT PRODUCT VARIATION BELOW TO ADD TO RFQ

Product Variations

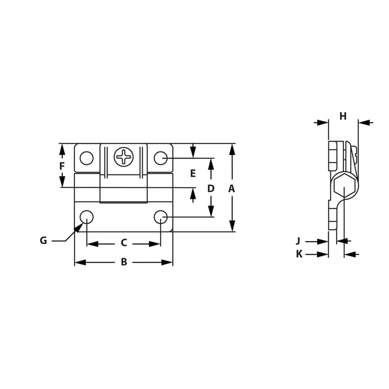
Item # Series A B C D E F G H J K List Price Qty. Add to RFQ
655078

10
1.440"
1.690"
1.250"
1.000"
.500"
.720"
.197"
.500"
.230"
.270"
14.130
655077

15
2.250"
2.500"
1.880"
1.500"
.750"
1.125"
.270"
.770"
.200"
.410"
19.620