Skip to main content Skip to footer

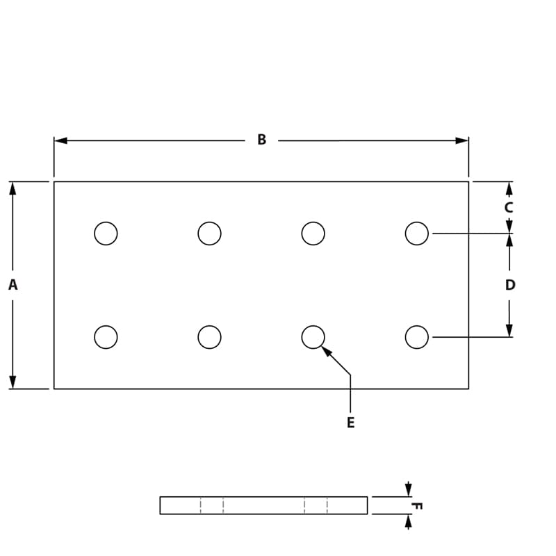
8 HOLE JOINING PLATE

Image of 8 Hole Joining Plate Image of Draw-8 Hole Joining Plate

Anodized aluminum 8 hole joining plate fastening method connects two extrusion profiles together at a 90-degree connection. This 8 hole joining plate doesn’t require any machining and engages the 2-degree lock feature for tightening assembly hardware

SELECT PRODUCT VARIATION BELOW TO ADD TO RFQ

Product Variations

Item # Series Finish Recommended Fasteners # 1 A B C D E F List Price Qty. Add to RFQ
653098

10
Clear
651171
2.000"
4.000"
.500"
1.000"
.257"
.188"
8.886
653197

15
Clear
651129
3.000"
6.000"
.750"
1.500"
.328"
.250"
10.220
654197
15
Black
651129
3.000"
6.000"
.750"
1.500"
.328"
.250"
11.412